
长沙晚报掌上长沙1月27日讯(全媒体记者 孙占锋)农村建房模式又有新进展,长沙发布装配式农村住房建设技术导则及图集,新型建造技术助推宜居农房建设……1月26日,《长沙市装配式混凝土结构农村住房建设技术导则(试行)》《长沙市装配式钢结构(非轻钢)农村住房建设技术导则(试行)》《长沙市装配式木结构农村住房建设技术导则(试行)》和《长沙市装配式农村住房图集》正式印发,这是长沙市住房和城乡建设局结合本地实际,积极推进高品质现代宜居农房建设的又一落地做法,为全省提供了可借鉴的样本。

120-A-1#户型效果图
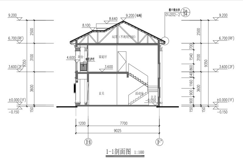
本次装配式农村住房建设技术导则及图集按照安全、舒适、绿色、智慧的要求编制,并且结合了长沙地区的自然、地理、气候等特点和经济社会发展水平。《长沙市装配式农村住房图集》共包含19个户型3种结构类型的装配式农村住房设计图。

户型汇总表
根据农村宅基地面积100㎡/户、120㎡/户、150㎡/户、180㎡/户类型,各编制了4套设计图纸,含装配式混凝土结构、装配式钢结构、装配式木结构图纸。同时结合农村危房改造,分别设计了70㎡、90㎡、120㎡三种宅基地面积的单层装配式混凝土结构农村住房共3套设计图纸。



《长沙市装配式混凝土结构农村住房建设技术导则(试行)》《长沙市装配式钢结构(非轻钢)农村住房建设技术导则(试行)》《长沙市装配式木结构农村住房建设技术导则(试行)》中也对房屋所涉及的种种参数如建筑防火、建筑节能、内外隔墙系统、剪力墙、钢框架、原木结构、给排水、电气智能化等均有明确的规定。
近年来,长沙市大力发展绿色装配式农村住房,加快农村住房建设现代化,深入推进乡村建设行动,率先在全省印发《关于开展装配式农村住房建设试点工作的通知》,在农村地区大力推广装配式建造技术。

100-B-1#户型效果图
“我家120平方米的房子几天就封顶了。”家住望城区靖港镇新峰村的低保户虢先生介绍,自己家新落成的装配式农房为整体精装交付,室内由四室两厅一厨一卫组成,功能完备,南北通透。这样的新农房不但盖得快,而且住着好,让越来越多准备建房的乡亲们颇感兴趣。

100-C-1#户型效果图
本次装配式农村住房建设技术导则及图集的出炉,将极大地提高农村地区装配式农村住房设计水平和建设品质,不断增强农村地区人民群众的获得感和满意度。